一覧に戻る

三芳町藤久保1期 新築戸建 成約済み

 2026年03月15日時点

成約済み

外観

間取り図1F

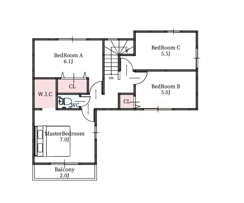
間取り図2F

区画図

LDK

キッチン

価格 ---万円
住所・最寄り駅 入間郡三芳町大字藤久保
東武東上線 鶴瀬駅 徒歩12分
東武東上線 みずほ台駅 徒歩18分
間取り/間取り詳細 4LDK  LDK17.5帖 / 洋室7.0帖 / 洋室6.1帖 / 洋室5.5帖 / 洋室5.0帖 築年月 2025年11月
建物面積/土地面積 99.36㎡/109.9㎡ 階数 地上2階

三芳町藤久保1期 新築戸建 成約済みのPRポイント


設備・条件

  • 長期優良住宅

  • 南道路

  • トイレ2か所

  • 駐車場2台以上

  • リビングダイニング15畳以上

  • パントリー

  • コンロ3口以上

  • バス・トイレ別

  • 洗濯機置き場

  • 独立洗面台

  • バルコニー

  • ウォークインクローゼット

  • 床下収納

  • クローゼットシューズボックス

三芳町藤久保1期 新築戸建 成約済みの物件概要

住所 入間郡三芳町大字藤久保
交通機関 東武東上線 鶴瀬駅 徒歩12分
東武東上線 みずほ台駅 徒歩18分
間取り/間取り詳細 4LDK / LDK17.5帖 / 洋室7.0帖 / 洋室6.1帖 / 洋室5.5帖 / 洋室5.0帖
建物面積 99.36㎡ 土地面積 109.9㎡
計測方法
主要採光面 建物構造 木造
都市計画 市街化区域
階数 地上2階 築年月 2025年11月
築年月備考
設備・条件 長期優良住宅/南道路/トイレ2か所/駐車場2台以上/リビングダイニング15畳以上/パントリー/コンロ3口以上/バス・トイレ別/洗濯機置き場/独立洗面台/バルコニー/ウォークインクローゼット/床下収納/クローゼットシューズボックス/
水道 公営水道、本下水 ガス 都市ガス
土地権利 所有権のみ セットバック
接道状況 一方
接道1 南西側 私道 幅員4.0m
地目 宅地 用途地域 第一種中高層住居専用地域
建ぺい率 60% 容積率 160%
引渡 相談 地勢
現況 空家 国土法届出 不要
取引形態 仲介 物件管理コード 2026030201
備考・特記事項 法第22条区域。下水道処理区域。宅地造成等工事規制区域。電波障害等によるケーブルテレビ共聴アンテナの申込はお客様負担となります。TVアンテナ・網戸・照明・カーテンレール等はオプションとなります。図面と現状が異なる場合は現状を優先させて頂きます。
問い合わせ先 東上住宅 株式会社 電話番号 049-250-5555
建築確認番号 第25UDI1W建04526号