2026年03月07日時点
成約済み
| 価格 | ---万円 | ||
| 住所・最寄り駅 | 朝霞市膝折町4丁目 東武東上線 朝霞駅 徒歩30分 東武東上線 朝霞駅 徒歩9分 |
||
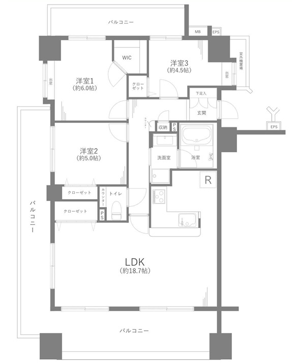
| 間取り/間取り詳細 | 3LDK LDK18.7帖 / 洋室6.0帖 / 洋室5.0帖 / 洋室4.5帖 | 築年月 | 2002年2月 |
| 建物面積/土地面積 | 76.97㎡/㎡ | 階数 | 地上12階 |
ペット可
駐車場あり
バイク置き場あり
駐輪場
エレベーター
照明器具付き
リビングダイニング15畳以上
カウンターキッチン
システムキッチン
食器洗い乾燥機
給湯
浴室乾燥機あり
追い焚き
バス・トイレ別
洗濯機置き場
独立洗面台
シャワー
シャワートイレ
2面以上バルコニー
出窓
ウォークインクローゼット
クローゼットシューズボックス
フローリング
| 住所 | 朝霞市膝折町4丁目 | ||
| 交通機関 | 東武東上線 朝霞駅 徒歩30分 東武東上線 朝霞駅 徒歩9分 バス停 膝折町一丁目から徒歩9分 |
||
| 間取り/間取り詳細 | 3LDK / LDK18.7帖 / 洋室6.0帖 / 洋室5.0帖 / 洋室4.5帖 | ||
| 建物面積 | 76.97㎡ | 土地面積 | ㎡ |
| 計測方法 | 登記 | ||
| 主要採光面 | 西 | 建物構造 | 鉄骨鉄筋コンクリート |
| 都市計画 | |||
| 階数 | 地上12階 | 築年月 | 2002年2月 |
| 築年月備考 | |||
| 設備・条件 | ペット可/駐車場あり/バイク置き場あり/駐輪場/エレベーター/照明器具付き/リビングダイニング15畳以上/カウンターキッチン/システムキッチン/食器洗い乾燥機/給湯/浴室乾燥機あり/追い焚き/バス・トイレ別/洗濯機置き場/独立洗面台/シャワー/シャワートイレ/2面以上バルコニー/出窓/ウォークインクローゼット/クローゼットシューズボックス/フローリング/ | ||
| 水道 | ガス | ||
| 土地権利 | 所有権のみ | セットバック | |
| 接道状況 | |||
| 接道1 | 側 幅員m | ||
| 地目 | 用途地域 | 工業地域 | |
| 建ぺい率 | % | 容積率 | % |
| 引渡 | 相談 | 地勢 | |
| 現況 | 空家 | 国土法届出 | |
| 取引形態 | 仲介 | 物件管理コード | 2025112003 |
| 備考・特記事項 | 図面と現況に相違がある場合、現況優先とします。
町内会費:2,400円/月。駐輪場:無償(管理シール代として100円/年、要シール貼付)バイク置場 :300円~500円/月。ペット飼育:可(犬猫1住戸2匹迄、成長時の体長が50cm以内で体重が10kg以内のもの) |
||
| 問い合わせ先 | 東上住宅 株式会社 | 電話番号 | 049-250-5555 |
| 建築確認番号 | |||
会員登録のメリット
①データ連携機能搭載
いつでも、どこでもPCやスマホ、タブレットなどで同じ状況で閲覧いただけます。
②物件比較機能
チェックした物件を様々な条件を並べて比較できますので絞り込みに便利です。

または
いつでも、どこでもPCやスマホ、タブレットなどで同じ状況で閲覧いただけます。
チェックした物件を様々な条件を並べて比較できますので絞り込みに便利です。
画面左下の会員登録ボタンからご登録下さい。