一覧に戻る

ふじみ野市仲1丁目 2号棟 新築戸建 成約済み

 2026年02月14日時点

成約済み

外観

LDK

洋室

収納

洗面化粧台

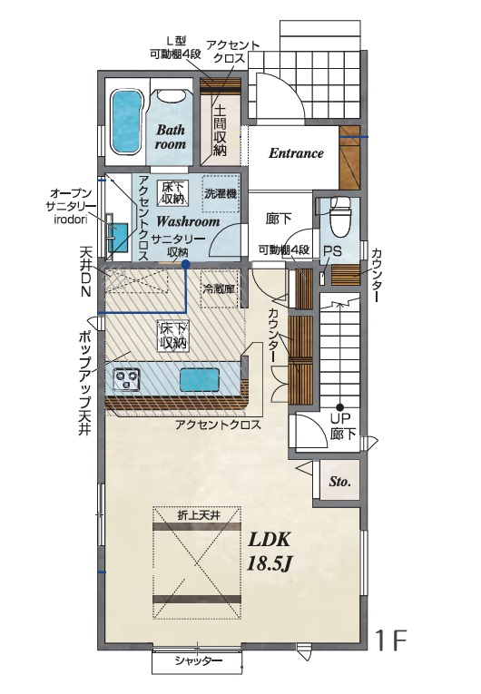
1F間取り図

2F間取り図

区画図

価格 ---万円
住所・最寄り駅 ふじみ野市仲1丁目
東武東上線 上福岡駅 徒歩27分
東武東上線 ふじみ野駅 徒歩29分
間取り/間取り詳細 4LDK  LDK18.5帖 / 洋室6.0帖 / 洋室5.25帖 / 洋室5.25帖 / 洋室5.0帖 築年月 2025年10月
建物面積/土地面積 104㎡/131.8㎡ 階数 地上2階

ふじみ野市仲1丁目 2号棟 新築戸建 成約済みのPRポイント


設備・条件

  • 耐震構造

  • 制震構造

  • 長期優良住宅

  • トイレ2か所

  • 駐車場2台以上

  • 宅配ボックス

  • 24時間換気システム

  • TVモニタ付インターホン

  • 照明器具付き

  • 間取り変更可能

  • リビングダイニング15畳以上

  • 対面キッチン

  • システムキッチン

  • 食器洗い乾燥機

  • 給湯

  • 浴室乾燥機あり

  • 追い焚き

  • バス・トイレ別

  • 洗濯機置き場

  • 独立洗面台

  • シャワートイレ

  • シャンプードレッサー

  • バルコニー

  • ウォークインクローゼット

  • 床下収納

  • フローリング

ふじみ野市仲1丁目 2号棟 新築戸建 成約済みの物件概要

住所 ふじみ野市仲1丁目
交通機関 東武東上線 上福岡駅 徒歩27分
東武東上線 ふじみ野駅 徒歩29分
間取り/間取り詳細 4LDK / LDK18.5帖 / 洋室6.0帖 / 洋室5.25帖 / 洋室5.25帖 / 洋室5.0帖
建物面積 104㎡ 土地面積 131.8㎡
計測方法
主要採光面 建物構造 木造
都市計画 市街化区域
階数 地上2階 築年月 2025年10月
築年月備考
設備・条件 耐震構造/制震構造/長期優良住宅/トイレ2か所/駐車場2台以上/宅配ボックス/24時間換気システム/TVモニタ付インターホン/照明器具付き/間取り変更可能/リビングダイニング15畳以上/対面キッチン/システムキッチン/食器洗い乾燥機/給湯/浴室乾燥機あり/追い焚き/バス・トイレ別/洗濯機置き場/独立洗面台/シャワートイレ/シャンプードレッサー/バルコニー/ウォークインクローゼット/床下収納/フローリング/
水道 公営水道・本下水 ガス 都市ガス
土地権利 所有権のみ セットバック 不要
接道状況 一方
接道1 北側 公道 幅員4.0m
地目 宅地 用途地域 第一種低層住居専用地域
建ぺい率 60% 容積率 100%
引渡 相談 地勢
現況 空家 国土法届出 不要
取引形態 仲介 物件管理コード 2025110902
備考・特記事項 文化財保護法、築地地区計画
電波障害等によるケーブルTV、共聴アンテナの申込はお客様負担となります。
図面と現況に相違がある場合、現況優先とします。
電気供給の為、敷地内に電柱及び支線が入る場合がございます。
問い合わせ先 東上住宅 株式会社 電話番号 049-250-5555
建築確認番号 第25UDI1W建02089号